....Guad-Hex Construction System ..Sistema Constructivo Guad-Hex....
Universidad Nacional Experimental del Tachira
....Project team: ..Equipo de proyecto: ....
....Structural system: Arch. Francisco Aguilar, Arch. Grecia Omaña, Arch. Nathaly Garcia, Arch. Akna Marquez
..Sistema estructural: Arq. Francisco Aguilar, Arq. Grecia Omaña, Arq. Nathaly García, Arq. Akna Márquez....
....Multifamily buildings: Arch. Grecia Omaña, Arch. Akna Marquez
..Edificios multifamiliares: Arq. Grecia Omaña, Arq. Akna Márquez....
....Single family housing: Arch Akna Marquez
..Vivienda Unifamiliar: Arq. Akna Márquez....
....The project represents the challenge of the invention of a construction system, which can operate in a modular way to provide a housing solution. Guad-Hex emerges as a progressive housing alternative, based on bamboo as its main material, for its environmental and economic benefits.
..El proyecto representa el reto de la invención de un sistema constructivo, que pueda funcionar de manera modular para dar una solución habitacional. Guad-Hex surge como una alternativa de vivienda progresiva, basado en el bambú como material principal, por sus beneficios ambientales y económicos. ....
....It is conceived as a frame structure of guadua hexagonal modules, with the option of growth up to 3 modules in vertical. The system consists of truss elements that give shape and rigidity to the module and transmit structural loads to the ground. In addition, its shape is adaptable to topographical slopes through terraces and stacking.
..Se concibe una estructura aporticada de guadua de módulos hexagonales, con opción de crecimiento hasta 3 módulos en vertical. El sistema consiste en elementos acerchados que dan forma y rigidez al módulo y transmiten las cargas al suelo. Además, su forma permite la adaptación a pendientes topográficas de manera escalonada. ....
....From this global idea, each one of the constructive elements required for the system's operation was designed. ..A partir de esa idea global se diseñaron cada uno de los elementos constructivos que requiere el sistema para su funcionamiento. ....
....
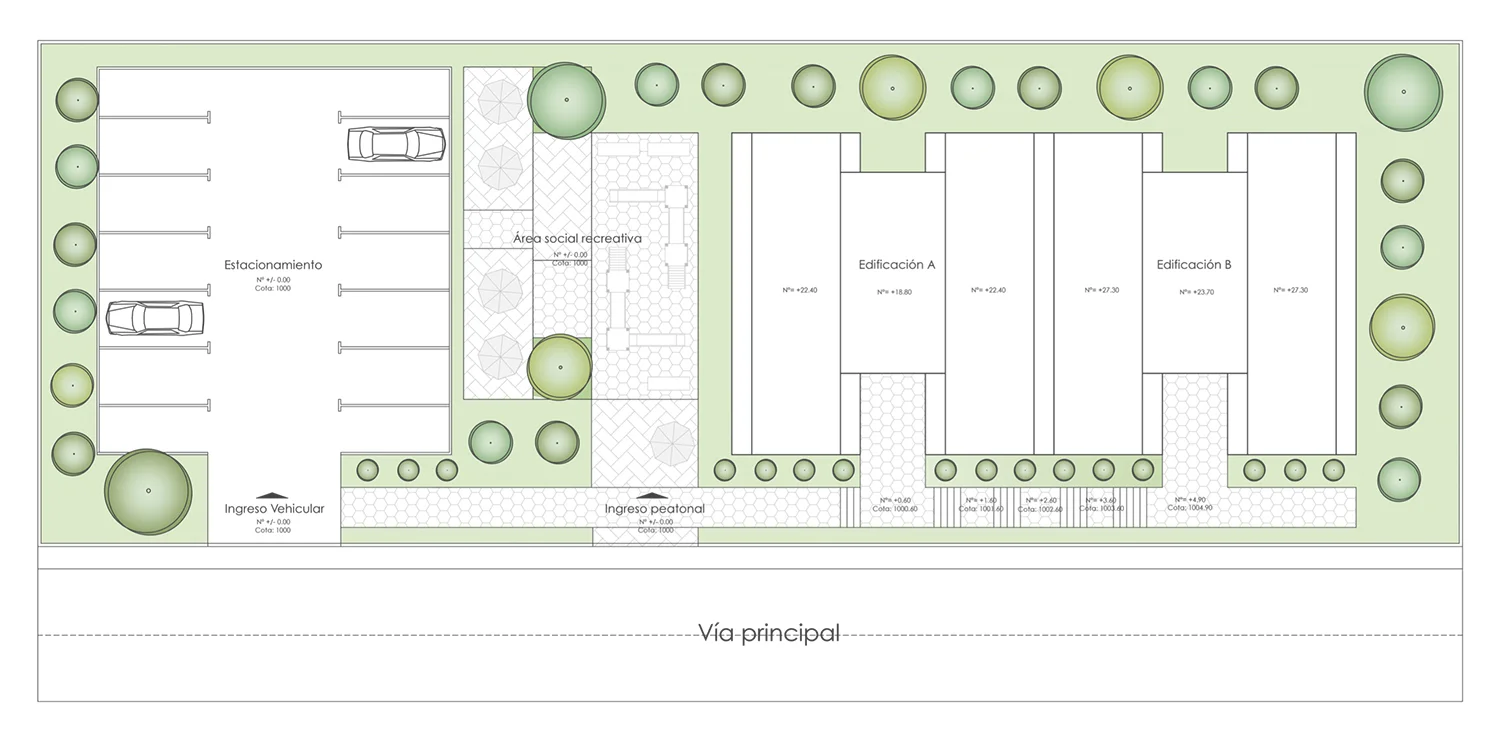
Resulting from this construction system, a proposal for multifamily housing was made, through the assemblage of hexagonal volumes that generate interaction with terrace areas and provide formal and functional quality to the site. .. Partiendo de este proceso de construcción se realizó una propuesta para edificaciones de vivienda multifamiliar, a través del apilamiento y desplazamiento de volúmenes hexagonales, buscando generar interacción con áreas de terraza y generarle calidad formal y funcional al recinto.
....
....Multifamily housing concept ..Concepto de vivienda multi familiar....
....Guad-Hex is applicable for single-family residences also. Below, a proposal of paired housing, with the possibility of construction in phases, allowing the growth of new rooms and multifunctional areas according to the needs of the user.
..La aplicabilidad de Guad-Hex también se da a nivel de vivienda unifamiliar. Para representarlo se realizó un ejercicio de viviendas pareadas con la posibilidad de construcción por etapas, permitiendo el crecimiento de nuevas habitaciones y áreas multifuncionales según la necesidad del usuario. ....
....Posterior facade - patio ..Fachada posterior - patio....
....Interior space of the house..Espacio interior de la vivienda....
